多功能綜合桿是ICT技術與傳統市政、交通、通信桿(塔)類公共基礎設施融合的具體形式,具有分布廣、位置優、電力通信等配套資源完備等優勢,既可為5G移動通信網絡實現···
微信掃碼咨詢400-6966-018
多功能綜合桿是ICT技術與傳統市政、交通、通信桿(塔)類公共基礎設施融合的具體形式,具有分布廣、位置優、電力通信等配套資源完備等優勢,既可為5G移動通信網絡實現規模化部署提供優質站址資源,本身也是多種終端設備的物理支撐載體和寬窄結合、泛在感知的物聯入口,可作為智慧城市和數字鄉村建設以及智能交通、智慧園區、智慧文旅、智慧農業及水利等數字化應用場景部署的基礎,加快數字社會建設步伐,構筑全民暢享的數字生活。
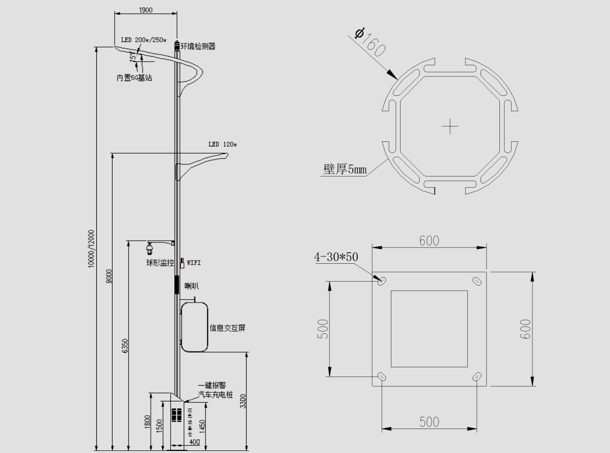
多功能綜合桿總體架構示意圖:

在當前新型智慧城市、數字孿生城市理念的推動下,建設城市級智慧路燈接入管理與數據匯聚平臺,推動感知設備統一接入、集中管理,以及推動部門間數據共享和業務協同已成為業界共識,5G智慧多功能綜合桿的總體架構開始由垂直閉環向水平整合方向發展,如圖 所示。在水平整合架構的基礎上,通過統一編碼規則、建設適配大多數設備的接口庫、統一平臺接口等。
在當前新型智慧城市、數字孿生城市理念的推動下,建設城市級智慧路燈接入管理與數據匯聚平臺,推動感知設備統一接入